1618 Richardson St, Victoria, BC

$1,649,000

Previous Next

3

Beds

2

Baths

2,030

Square feet

0.26

Acres

About 1618 Richardson St

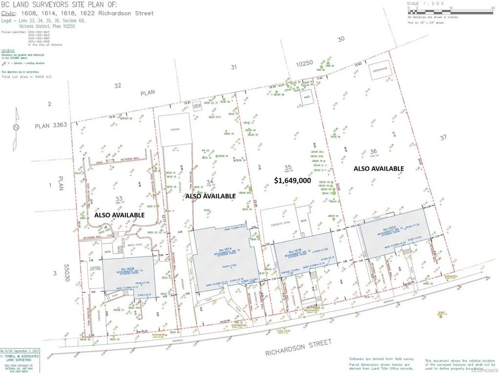
This is an incredibly rare opportunity to acquire over 47,000 square feet of land with 292 feet of frontage on Richardson Street. The site consists of four separate parcels, each currently featuring a home. With a land price of $144 per square foot there is no better place to build. Located in Rockland, Victoria's most prestigious neighborhood, this site is completely flat, ensuring an easy and affordable build. It is situated on the newly completed AAA biking road, minutes from the ocean and shopping, and located on a BC Transit route. The property size and configuration offer numerous possibilities under the new OCP, including four-story buildings, townhouses, or SFHs. The 1.6 FSR allows for up to 75,000 buildable square feet without rezoning. This is also an ideal location for a rental building with significant return given the higher rental rates for the area. The buyer is responsible for verifying any proposed subdivisions and possible uses with City of Victoria staff.

Residential home for sale in Victoria, BC at 1618 Richardson St. This 3 bedroom Residential home is priced at $812/sqft

Features of 1618 Richardson St

MLS® # 1024078
Price $1,649,000
Bedrooms 3
Bathrooms 2.00
Square Footage 2,030
Acres 0.26
Year Built 1956
Type Residential
Sub-Type Single Family Detached
Style Character
Status Active
Pet Friendly Aquariums, Birds, Caged Mammals, Cats, Dogs

Community Information: Victoria

Address 1618 Richardson St
Area Vi Fairfield West
Subdivision Vi Fairfield West
City Victoria
County Capital Regional District
Province BC
Postal Code V8S 1R5

Amenities of 1618 Richardson St

Parking Spaces 2
Parking Driveway
Is Waterfront No
Has Pool No

Interior of 1618 Richardson St

Interior Features Dining/Living Combo
Appliances F/S/W/D
Heating Baseboard, Electric, Wood
Cooling None
Fireplace No
Fireplaces Living Room

Exterior of 1618 Richardson St

Exterior Features Balcony/Patio
Roof Asphalt Shingle
Construction Frame Wood, Stucco
Foundation Poured Concrete

Additional Information On 1618 Richardson St

Date Listed January 26th, 2026
Days on Market 15

Listing Details of 1618 Richardson St

OfficeFair Realty

Map To 1618 Richardson St, Victoria

Request a Showing

Provide a valid email address.
When would you like to view this property?